Nel tranquillo e panoramico quartiere di Monte dell'Ara-Valle Santa, proponiamo in vendita una splendida villa che offre comfort e spazio per tutta la famiglia.
Dettagli della Proprietà
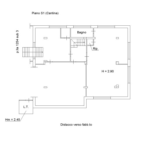
PIANO SEMINTERRATO
- Garage di 80 mq;
- Sala hobby;
- Locale caldaia;
- Bagno di servizio finestrato;
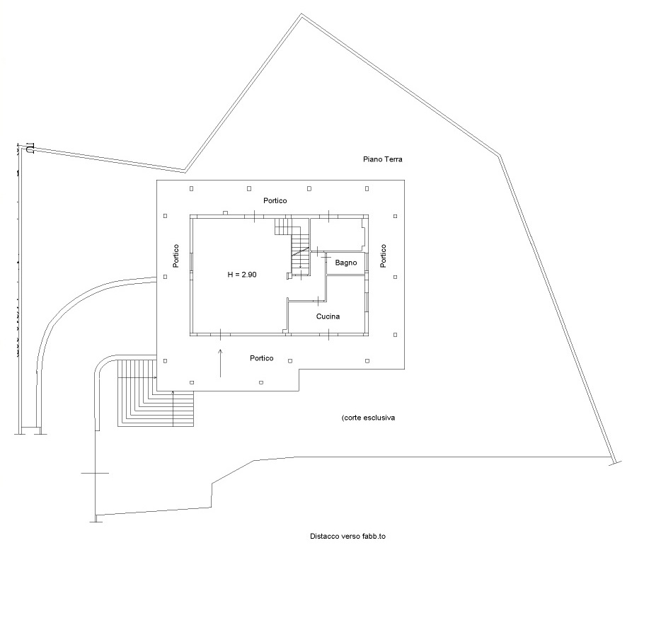
PIANO RIALZATO:
- Cucina abitabile;
- Ampio salone con camino;
- Una camera;
- Bagno finestrato.
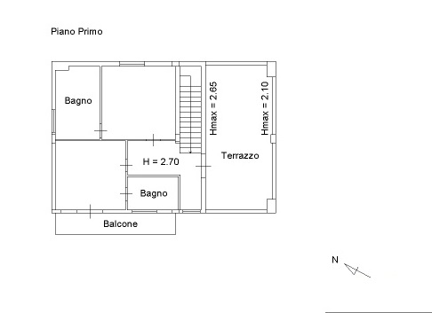
PIANO SUPERIORE:
- Zona notte con 2 spaziose stanze matrimoniali, entrambe dotate di bagno privato finestrato;
- Balcone;
- Grande terrazzo. ESTERNI:
- Ampio giardino privato, ideale per momenti di relax e svago.
La villa viene venduta quasi completamente arredata, con MOBILI realizzati artigianalmente SU MISURA, che aggiungono un tocco di unicità e stile.
Non perdere l'opportunità di vivere in una delle zone più tranquille e soleggiate di Roma, con tutti i comfort e gli spazi che desideri. **Contattaci per maggiori informazioni e per fissare una visita!
Proprietà immobile
ID Proprietà
68501d1e
Posti auto
2
Prezzo
700.000 €
Spese condominiali
Dimensione
282 Mq
Anno
1990
Locali
10
Tipologia
Villa
Bagni
4
Stato
In vendita
Livelli immobile
2
Destinazione d'uso
Residenziale
Al piano n°
TERRA
Indirizzo
Indirizzo
Via Tricerro, Monte dell'Ara-Valle Santa, RM, Italia